Moradia com dois pisos com projeto para duas frações autónomas, no Centro Histórico de Sines
Moradia no centro histórico de Sines, a 50 metros do castelo da cidade, perto da praia, de comércio local, de restaurantes, serviços e da Câmara Municipal, com vista mar no 2.º piso.
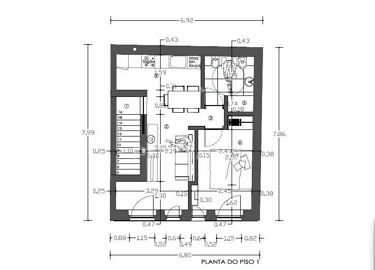
O imóvel tem atualmente um projeto pronto e em fase final de processo na autarquia, para, em caso de reconstrução, serem criadas duas frações autónomas T1, uma em cada piso.
Esta é uma oportunidade para investir para arrendamento de curta ou de longa duração, numa zona de excelência de Sines, junto ao Castelo de Sines, ao comércio local e restaurantes, bem como de serviços culturais e dos acessos à praia Vasco da Gama e às principais bolsas de estacionamento do Centro Histórico.
Sobre Sines
Sines é uma cidade localizada no centro da Costa Alentejana, em franco crescimento económico, estando atualmente em desenvolvimento e previstos investimentos em projetos industriais, de energia verde, logísticos e tecnológicos que superam os mil milhões de euros (para mais detalhes, consulte o nosso blog aqui https://vascodagamaimobiliaria.com/blog/).
Sines é uma cidade histórica, tendo sido uma pequena Vila Piscatória até aos anos 70 do século passado, altura em que a construção do Complexo Industrial de Sines e da infraestrutura portuária se iniciou e a população cresceu.
Desde então, a tradição da pesca tem convivido com o desenvolvimento de Sines, que está atualmente a conhecer uma nova dinâmica, especialmente com a aposta nos sectores tecnológico - é aqui que está acoplado o cabo de dados submarino da Ellalink, que liga a Europa diretamente ao Brasil e vai acolher um hyperscale datacenter da empresa Start Campus, cuja construção já começou - e energético, em que o primeiro projeto de maior escala de produção de hidrogénio e amónia, promovido em parceria pelas empresas Madoqua Renewables (Portugal), Power 2X (Países Baixos) e Copenhagen Infrastructure Partners (Dinamarca), foi já anunciado pelo Governo.
A par do desenvolvimento económico com impacto local e nacional, Sines (e os concelhos vizinhos) oferece condições únicas para quem gosta de viver em tranquilidade, a um passo do campo e das melhores praias da Costa Alentejana, quer para relaxar, ou para a prática de desportos, como o surf. São Torpes é aliás uma das praias mais conhecidas do País para a prática desta modalidade, assim como o Malhão, a apenas alguns km a Sul, no concelho de Odemira.
E tudo isto a 1h30 de carro de Lisboa e do Algarve.